Eladó Ikerház

59.9 millió Ft

Monor
Alapterület:
66 m2
Szobák száma:
3
Állapot:
Új építésű
Építési mód:
Tégla
CSOK igényelhető
Jó közlekedéssel
Kertkapcsolatos
Zöldövezeti

240 m2
Újszerű
Hőszivattyú
Kertre néző
Összkomfort
Optikai
Bevezetve (230 Volt)
Van, saját vízórával
Gázvezeték a telek előtt

Megvételre kínálunk Monoron egy újépítésű, HÓSZIVATTYÚS, KLÍMÁS, teraszos, 66 nm-es, 3 szobás ikerházat.

Megvételre kínálunk Monoron egy újépítésű, HÓSZIVATTYÚS, KLÍMÁS, teraszos, 66 nm-es, 3 szobás ikerházat. Minőségi alapanyagokból, igényes kivitelezés jellemzi a projektet, ahol a biztonság és a kényelem mellett az energiatakarékosság volt a fő szempont. Az ingatlan fűtéséről, valamint a használati melegvíz ellátásáról egy modern, energia takarékos, innovatív levegő-víz hőszivattyú gondoskodik H tarifás üzemeltetéssel.

Ennek köszönhetően a rezsi költségek minimalizálódnak.

 

Az ingatlan hűtéséről egy klíma berendezés fog gondoskodni.

 

Ennél a beruházásnál most lehetősége van kompromisszumok nélkül egy olyan lakásba költözni, ahol Ön kiválaszthatja a hideg és meleg burkolatokat, szanitereket, valamint az egyéb kiegészítőket a családja legnagyobb megelégedésére, ez által személyre szabva álmai otthonát.

A kulcsra kész ár tartalmazza a redőnyöket, három rétegű nyílászárókat, riasztó előkészítést, kaputelefon és motoros kapu kiépítést. A gépjárművekkel az ingatlanhoz tartozó térkövezett beállón lehet biztonságosan parkolni.  
 

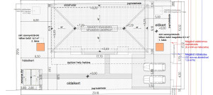
Az ingatlanhoz 240 nm-es privát telek tartozik

 

Igénybe vehető lehetséges kedvezmények:

CSOK
5% Áfa visszatérítés
Babaváró hitel
Illeték kedvezmény vagy mentesség.

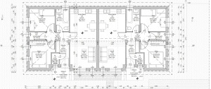
Helyiség lista:
- Előszoba
- Közlekedő

- WC
- Szoba

- Szoba
- Fürdőszoba
- Amerikai konyha,

- Étkező
- Nappali 
- Tároló
- Terasz

A hirdetés referencia fotókat is tartalmaz.

 

Az ingatlan biztonságos, nyugodt, csendes, kertes házas övezetében, Monor egyik legszebb részén található. A környék fejlett infrastruktúrájának köszönhetően bővelkedik a szociális intézményekben, bölcsőde, óvoda, általános iskola, orvosi intézmények, bevásárlási lehetőségek, találhatóak a közelben.

Közlekedése kiváló, busszal a centrum vagy vonattal a Nyugati pu. rövid idő alatt megközelíthető. Az M4-es autópálya öt perc alatt elérhető.

Hitel, CSOK igénylésben díjmentes ügyintézéssel állunk rendelkezésére! Nálunk kiválaszthatja az Ön számára legkedvezőbb ajánlatot.

Várom megtisztelő érdeklődésüket.

Lakástakarék, babaváró hitel és jelzáloghitel közvetítésben együttműködő partnerünk a C&I Hitelnet Kft. A kalkulátor üzemeltetője a hitelnet.hu.

Kérdése van?
Adja meg adatait és felhívjuk!

Az Adatkezelési tájékoztatót elolvastam és elfogadom.
Üzenet küldése